Este site utiliza cookies para permitir a mudança de língua e o armazenamento dos seus imóveis favoritos. Ao utilizar este site, concorda que o mesmo utilize cookies.

Moradia T2 São Roque

298.000€




Referência

CT-1881/2026

Natureza

Venda

Tipo de Imóvel

Moradia

Subtipo de Imóvel

Moradia Térrea

Tipologia

T2

Estado

Por Recuperar

Certificado energético

E

Ano

2015


Distrito

Madeira

Concelho

Funchal

Freguesia

São Roque

Código Postal

9020


Área Útil

120 m2

Área Bruta

130 m2

Área de Terreno

620 m2



Contactar Imobiliária

*Preenchimento obrigatório
Ao clicar em 'Enviar', declara que aceita a nossa Política de Privacidade.
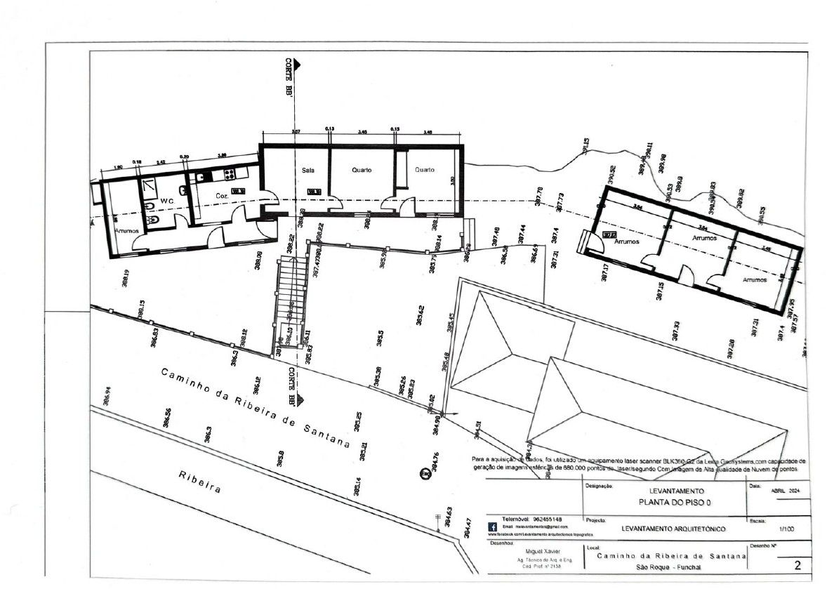
Excelente moradia, localizada a 8 minutos de carro do centro do Funchal.

É composta por dois quartos, sala de estar, sala de TV, cozinha e varanda, perfeito para si e para a sua família.

Contém um anexo à parte com potencial para transformar num T0, ideal para alojamento local ou para obter uma renda extra. Têm garagem para 2 carros e um bom espaço exterior.

É possível observar nas imagens, um desenho de como a sua casa poderá ficar no futuro!

Não perca esta oportunidade! Aposte na Casa Certa!

CASAS & TETO - Mediação Imobiliária, Lda.

Somos intermediários de crédito certificados e ajudamos-lhe a encontrar as melhores soluções do mercado! Aproveite este serviço gratuito que temos para lhe oferecer;

"A informação disponibilizada, embora precisa é meramente informativa, pelo que não pode ser considerada vinculativa, e poderá ser sujeita a alterações."
  

Geral
GaragemIndividual:Sim
GeraisNº de Casas de Banho:1

Este imóvel não tem áreas definidas.

Imóveis
Semelhantes

Moradia
Venda

3.900.000€

Moradia House Século XXI

3.900.000€

Madeira / Funchal / São Martinho


Ref: CT-1861/2025

Ref: CT-1861/2025

690.55 m2

3

5

Moradia
Venda
oportunidade

Preço sob consulta

Moradia Geminada em Constução

Preço sob consulta

Madeira / Funchal / São Gonçalo


Ref: CT-1766/2025

Ref: CT-1766/2025

186 m2

3

3

Moradia
Venda

950.000€

Moradia T3 Santo António

950.000€

Madeira / Funchal / Santo António


Ref: CT-1904/2026

Ref: CT-1904/2026

360 m2

3

2